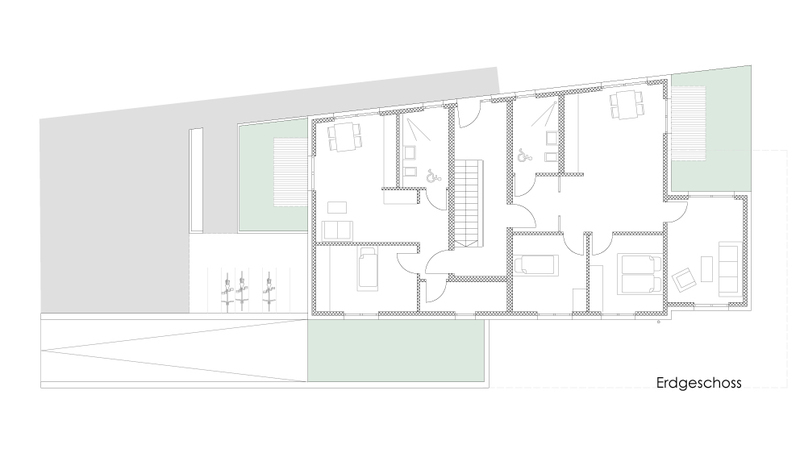
Im rückwertigen Teil eines schmalen Grundstücks wird unter maximaler Ausnutzung der Abstandsflächen ein Mehrfamilienhaus mit 7 Wohneinheiten und einer Tiefgarage geplant. Auf den  schrägen Grundstücksverlauf wird mit einem trapezförmigen Grundriss reagiert.

Baugenehmigung erteilt, Baubeginn Anfang 2015

Druckversion | Sitemap
© Copyright Jürgen Mrosko 2014